Breig Aquamarine II

Batu Bolong, Bali

Project general facts

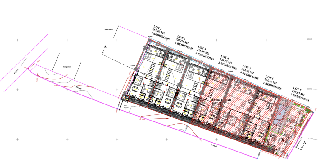
Aquamarine II by Breig is a stunning residential complex comprising 7 villa units nestled in a tranquil environment. Each villa boasts modern design elements, offering a harmonious blend of luxury and functionality. The spacious units come in various configurations, with options for 3 or 4 bedrooms, providing residents with flexible living spaces to suit their individual needs.

The complex features two inviting swimming pools, creating a perfect oasis for relaxation and recreation. Residents can enjoy the refreshing waters while soaking in the tropical ambiance. The emphasis on outdoor spaces extends beyond the pools, with meticulously maintained gardens surrounding the villas, creating a lush and serene atmosphere.

Aquamarine II by Breig places a strong emphasis on the well-being and security of its residents. The property is equipped with 24/7 security services to ensure a safe and secure living environment. Maintenance services are readily available, covering both routine upkeep and any required renovations to keep the villas in pristine condition.

AED 2.27M

Starting Price

Sold out

Payment plans

AUG 2024

Handover

Finishing and materials

Combination of natural materials and chic industrial finishes. 

Kitchen and appliances

Fully eqquipped

Furnishing

Fully furnished

Location description and benefits

The sea temple at Batu Bolong is a sacred site for the Balinese people. Visitors can experience the spiritual ambiance and the breathtaking views of the Indian Ocean. The temple is perched on a rock, and visitors can walk across a bridge to reach it.

The location provides spectacular panoramic views of the coastline and the vast ocean. It’s a popular spot for both locals and tourists to enjoy the beauty of Bali’s natural landscape.

Batu Bolong is situated near the popular surf spot, Echo Beach. Surfers often visit this area to catch the waves and enjoy the challenging surf conditions.The temple at Batu Bolong is not only a tourist attraction but also an important religious site. Visitors are advised to respect the local customs and traditions when exploring the temple.

Like many places in Bali, Batu Bolong is known for its stunning sunsets. Many visitors gather in the evening to witness the sun setting over the Indian Ocean, creating a magical atmosphere. The area around Batu Bolong has seen development to accommodate the growing number of visitors. There are cafes, restaurants, and shops in the vicinity, making it a convenient and enjoyable destination.

photo gallery

Project Location

General Plan

Facilities

Swimming Pool

Visualisation from developer

Recreation area

Visualisation from developer

floor plans

AED 2,277,319 — AED 0

3016 sqft — 3132 sqft

AED 2,479,339 — AED 0

3302 sqft — 0 sqft

Convinced you that we’re the best in the business?

Contact us today to start the conversation about your exciting next chapter, your new home.

off plan property

please fill in the form below and one of our agents with get back to you with the requested information.